---
title: "Skitser"
date: "2025-03-13"
created: "2024-03-15"
---

[Hjem](https://aeroeklima.dk/)

                    [El-færger](https://aeroeklima.dk/el-faerger)

                    [E-ferry Ellen](https://aeroeklima.dk/el-faerger/e-ferry-ellen)

                    [E-ferry Ellen - Fakta og skitser](https://aeroeklima.dk/el-faerger/e-ferry-ellen/e-ferry-ellen-fakta-og-skitser)

                [Skitser](https://aeroeklima.dk/el-faerger/e-ferry-ellen/e-ferry-ellen-fakta-og-skitser/skitser)

# Skitser

                ![](https://aeroeklima.dk/i/MOLIRIMEDIA/f828dadd-ee40-468e-5053-08dc401930b3?width=800)

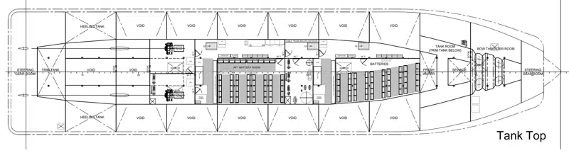
Herunder kan ses 2D skitser af el-færgen, udfærdiget af Rådgivende Skibsingeniører Jens Kristensen ApS.

                ![](https://aeroeklima.dk/i/MOLIRIMEDIA/19f02b0f-1213-42ea-50a0-08dc401930b3?width=800)

                ![](https://aeroeklima.dk/i/MOLIRIMEDIA/9bbb4d00-f2f7-4831-509f-08dc401930b3?width=800)

                ![](https://aeroeklima.dk/i/MOLIRIMEDIA/91249ea6-4147-4e95-509e-08dc401930b3?width=800)

                ![](https://aeroeklima.dk/i/MOLIRIMEDIA/cfae2add-b675-4621-509b-08dc401930b3?width=800)

                ![](https://aeroeklima.dk/i/MOLIRIMEDIA/5f45eb80-9d83-4d61-509d-08dc401930b3?width=800)

                ![](https://aeroeklima.dk/i/MOLIRIMEDIA/62953820-ab89-4321-509c-08dc401930b3?width=800)
